VILLAS DE PALERMO
DESIGNER & PROJECT MANAGER 2004-2007
EXPERIENCE
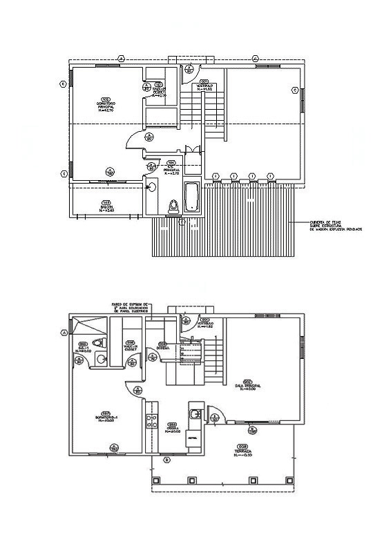
The Palermo Hotel and Resort is located in San Juan del Sur, a city that bridges Costa Rica and Nicaragua on the Pacific Ocean. The hotel features 50 villas, poolside spa, flexible in-room work spaces, full-kitchens and room service, wireless broadband connectivity throughout the property, as well as both large and small, air-conditioned conference and meeting spaces.Locally sourced finishes include hardwood doors and windows, FSC certified furniture, traditional polished cement floor tiles, terra cotta roof and terrace tiles and hand crafted lighting fixtures.
SKILLS
Construction ManagementQuality Control
Project Management
Brand Design
Hospitality Design









